Прицеп 9855-20 для перевозки погрузчика bobcat и аналог

Прицеп 9855-20 для перевозки погрузчика bobcat и аналог в Самаре на Ehkskavator.ru. Цена: 650000 рублей, Технические характеристики, Фото. Ищите где купить технику, запчасти, оборудование, материалы, инструменты? Объявления о Прицеп 9855-20 для перевозки погрузчика bobcat и аналог от компаний и частных лиц в Самаре и в других городах России! на страницах доски объявлений Ehkskavator.ru

Прицеп 9855-20 для перевозки погрузчика bobcat и аналог
Прицеп 9855-20 для перевозки погрузчика bobcat и аналогПрицеп 9855-20 для перевозки погрузчика bobcat и аналогПрицеп 9855-20 для перевозки погрузчика bobcat и аналог+3 фото
650 000
ПромАгроПрицеп
Телефонномер скрыт
E-mail
Написать
Сайтpricep-rf.ru
Добавлено
07.06.2024 в 19:10
№ 547706198 +1
Искать похожие объявления
Еще из Самарской обл.

Описание

Прицеп 9855-20 для перевозки погрузчика bobcat и аналог в Самаре:

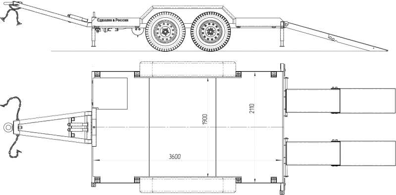
Автомобильный, низкорамный Прицеп модели 9855-20 (ПТ 2х3, 5К) предназначен для перевозки малогабаритной спец техники массой от 2, 5 до 4 тонн, для перевозки коммунальной, дорожно - строительной спец техники, такой как:
- мини погрузчика, погрузчики с бортовым поворотом, Компактные колесные погрузчики (Bobcat, Terex, Амкодор, Volvo, CASE, Toyota, МКСМ, Giant, Mustang, JCB, Komatsu, Kramer, New Holland, Takeuchi, LiuGong, и т.д);
- тротуарного катка, тандемные вибрационные Раскат, XCMG, Vogele, Caterpillar, Hamm, JCB, Amman, Bomag, Dynapac и т.д.;
- экскаватора гусеничного (мини), Мини гидравлические экскаваторы: Volvo, Kubota, Bobcat, Hitachi, Case, JCB, Doosan, komatsu, terex, и т.д.;
- мобильные копровые установки;
- прочее.
Гарантия -1 год.
Доставка в любой регион РФ и СНГ.
Основные технические показатели прицепа 9855-20:
Грузоподъемность, кг - 4000
Масса прицепа, кг - 1100
Размер грузовой платформы, мм - 3600…3920 х 1900…2000 х 560
Настил платформы - Сталь /влагостойкая фанера/ дерево х/п
Подвеска - Резино-жгутовый торсион
Тормозная система - Привод пневмогидравлический двухпроводной. Колодочная с равным смещением колодок, барабанного типа, действующая на все колеса
Аппарели (сходни) (по согласованию) - Гладкие /складные/задвижные под платформу
Сцепное устройство - петля: ГОСТ D=90мм/ЕВРО D=50мм/ Евро D=40мм
Электрооборудование - Однопроводное 24 В, стоп-сигнал, габаритные огни, указатели поворота
Цвет -красный, возможен подбор цвета по RAL
Дополнительно: Рифление платформы, тяговые устройства (лебедки), разработка дополнительных опций по техническому заданию
Купить прицеп 9855-20 для перевозки техники выгодно
Купить прицеп для перевозки погрузчика Бобкет, МКСМ по выгодной цене

Показать все
Объявления из категории: Продажа › Погрузчики